Prime location near Kutschkermarkt
Prime location near Kutschkermarkt
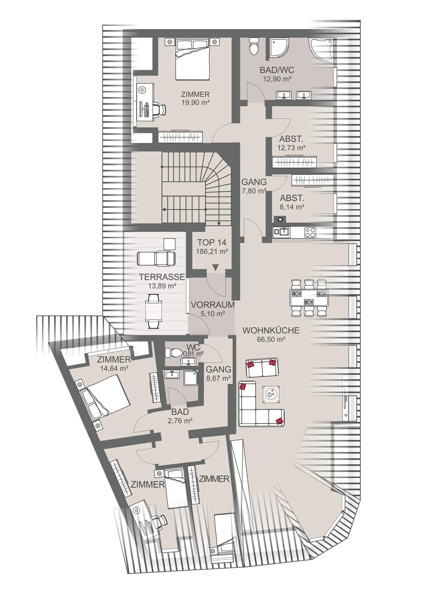
€ 1,490,000,-- 186 sq m Living space
- 4 Bedrooms
- 2 Bathrooms
- 14 sq m Outdoor space
- 1 Car spaces
Prime location near Kutschkermarkt
The penthouse apartment with terrace is located in a beautiful period building with an elevator. At the very top of the building, it offers privacy and sweeping views over Währing.
The well-thought-out floor plan allows for various usage options and can be individually adapted to suit your needs.
The penthouse features a spacious living/dining room, four bedrooms, two bathrooms, two separate WCs, one storage room, and an entrance hall with direct access to the terrace.
Located in the heart of Vienna’s 18th district, this location offers every opportunity to enjoy life to the fullest. The nearby tram lines 40 and 41 provide direct access to the city center. A well-developed cycling network connects both to the inner city and the surrounding green areas, including various parks and the Vienna Woods.
The infrastructure is second to none.
The nearby Kutschkermarkt and Währinger Straße offer a wide range of shopping opportunities and culinary delights. Doctors, pharmacies, and various schools are also within easy reach.
- Elevator
- Partially air-conditioned
- Parquet flooring
- Basement storage unit
The apartment includes a parking space in the building’s private garage, which can be purchased for €40,000.
Please note that our company is acting as a dual agent.
- Air condition
- Car spaces
- Outdoor space
- Living space
- 186 sq m
- Outdoor space
- 14 sq m
- Bedrooms
- 4
- Bathrooms
- 2
- Toilets
- 2
- Terrace
- 1 (14 sq m)
- Furnished
- no
- Car spaces
- 1
- Lift
- yes
- Barrier-free
- no
- Cellar
- Cellar compartment
- Property-ID
- IVW-25-12578
- Location
- 1180 Wien
- Ready-to-use
- immediately
- EPC
- 120.72 kWh/sq m
- Commission
- 3% of the purchase price plus 20% VAT.
- Price
- € 1,490,000,-
Thank you for your inquiry.
Sonja Kaspar
Don't miss a thing!
By registering for the newsletter, you confirm that you would like to be regularly informed about new publications, offers, invitations and updates on the real estate market and give your consent for OTTO Immobilien GmbH to use the data provided to send you an email newsletter. You can revoke your consent at any time without giving reasons with effect for the future, e.g. by unsubscribing from the newsletter.
Thank you. You have successfully subscribed for our newsletter.
